PALIER
Extension d'une maison


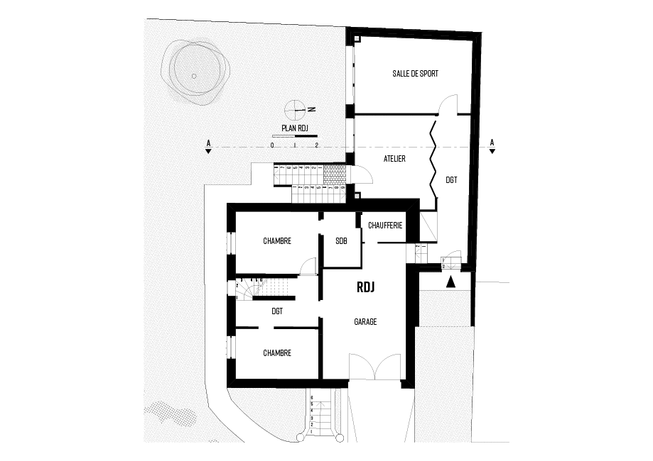
Programme : Extension d’une maison
Lieu : Champigny-sur-Marne
Maître d’ouvrage : Particulier
Mission : Permis de construire
Avancement : Permis de construire
Surface : 60 m²
Thématique : Extension; Terrasse, Jardin


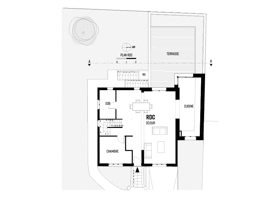
Programme : Extension d’une maison
Lieu : Champigny-sur-Marne
Maître d’ouvrage : Particulier
Mission : Permis de construire
Avancement : Permis de construire
Surface : 60 m²
Thématique : Extension; Terrasse, Jardin