KAPLA
Surélévation d'une maison


Le projet concerne la surélévation d’une maison individuelle en copropriété dans le 19e arrondissement de Paris. Située en fond de parcelle, elle est invisible depuis l’espace publique.
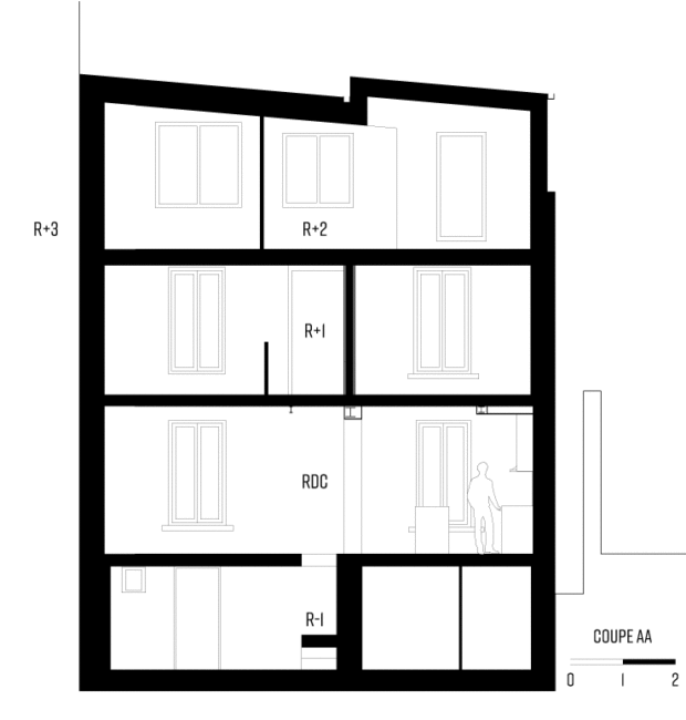
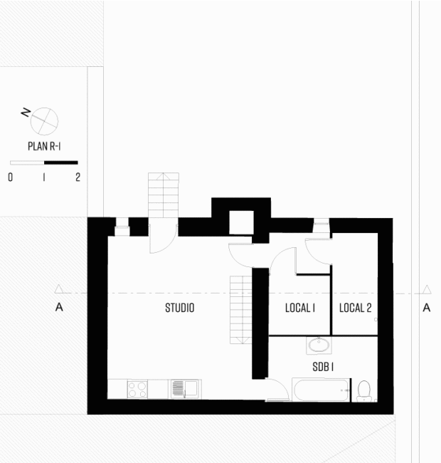
La maison existante, implantée sur deux niveaux existants, est donc ici agrandie, non seulement via la surélévation mais également par une réorganisation complète des espaces existant. En effet, la circulation verticale est optimisée, permettant l’ouverture complète du rdc de chaussé accueillant désormais une cuisine ouverte sur un séjour volumineux et lumineux.
Ce nouvel axe vertical dessert également les espaces nuit, désormais étendus sur deux niveaux, grâce à une surélévation. Cette dernière est constituée de deux volumes imbriqués, jouant entre continuité et disparité. L’alignement des ouvertures ancrent la surélévation sur le bâti existant, mais le décalage des façades la pente des toitures et le bardage bois résonnent quant a eux avec l’environnement proche de la maison, tranchant avec l’existant.
Forte de cette ambivalence, la surélévation s’insère ainsi parfaitement dans son contexte, illustrant l’un des axes de réflexion principale de l’agence : le faire avec.
Programme : Surélévation d’une maison
Lieu : Paris
Maître d’ouvrage : Particuliers
Mission : Complète
Avancement : Livré en 2022
Surface : 147 m²
Presse






















