
LANIERES
Construction de 10 logements collectifs et un commerce


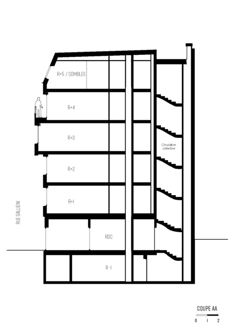
Programme : Logement Collectifs
Lieu : Asnières-sur-Seine
Maître d’ouvrage : Avis Groupe
Mission : Permis de construire
Avancement : Etude
Surface : 575 M²
Thématique: Logement;
Presse



Programme : Logement Collectifs
Lieu : Asnières-sur-Seine
Maître d’ouvrage : Avis Groupe
Mission : Permis de construire
Avancement : Etude
Surface : 575 M²
Thématique: Logement;