MONTRE-OEUIL
Transformation d'un ancien atelier en logement


Transformation et surélévation d’un ancien atelier de menuiserie à l’abandon en logement.
A l’opposé des choix les plus fréquents de l’atelier d’architecture Florence Gaudin, la surélévation de l’enveloppe bâtie est traitée en mimétisme avec l’écriture architecturale de l’atelier existant. Ce choix bien qu inhabitituel correspond néanmoins a une posture de l’atelier : faire avec. Pas d’opposition systématique, pas de « geste » architectural gratuit mais une réponse adaptée.
Les règles d’urbanisme imposaient une surélévation en continuité avec le volume existant. Il est donc apparu préférable d’assumer cette continuité dans le traitement des façades. Le choix des matériaux et des couleurs apportent une touche contemporaine.
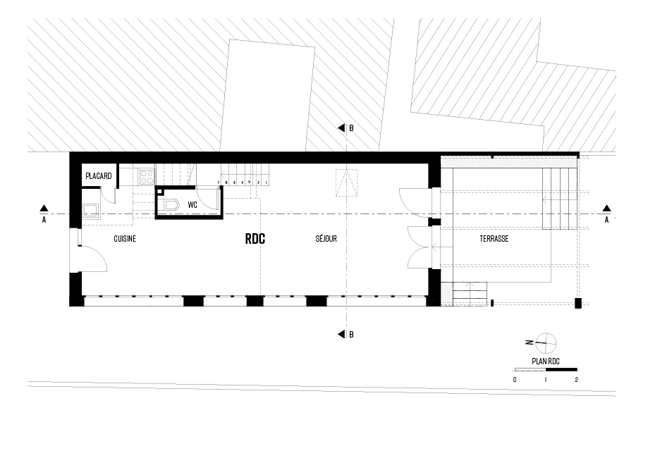
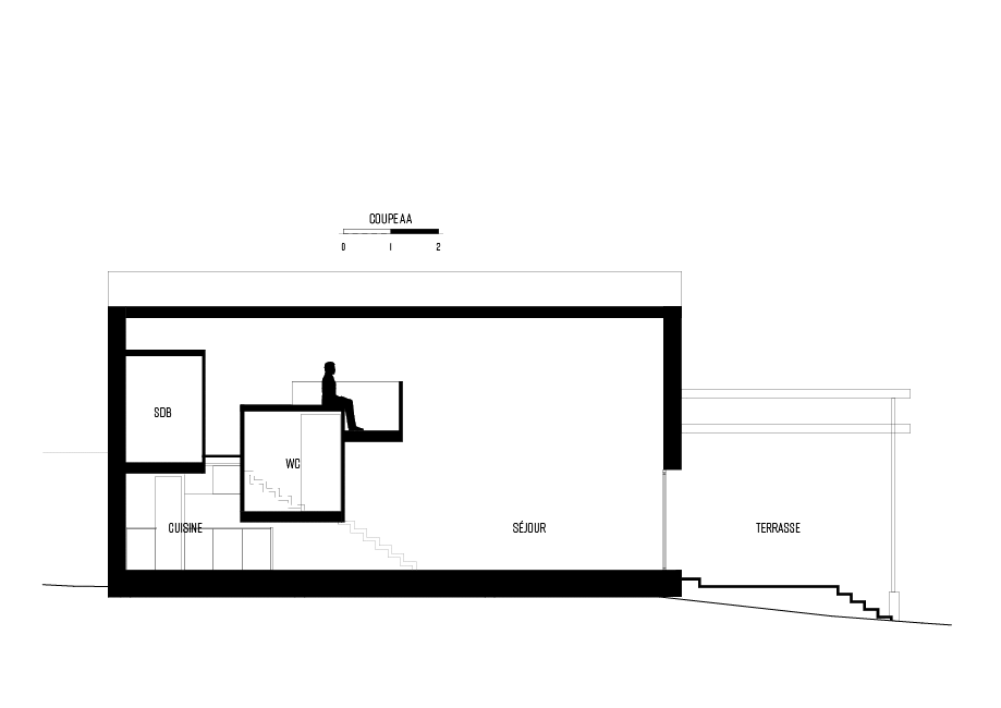
Le volume généreux obtenu par cette surélévation, portant la hauteur sous plafond à plus de six mètres, est volontairement préservé. des boîtes pensées comme des cabanes en boie sont suspendus à des niveaux variées. Ces boîtes accueillent les programmes fermés (salle de bain et WC) ainsi qu une chambre mezzanine et une niche de jeu.
Le mouvement ascensionnel des boites n’est pas gratuit ; il correspond à une logique technique d’évacuation des eaux usées.
Cette démarche s’inscrit dans une logique récurrente chère au travail de l’atelier : transformer les contraintes en moteur de projet : faire avec.
Cette disposition des volumes engendre un parcours ludique à travers la géométrie de ces boites offrant 4 niveaux d’accès et des cadrages variés
L’espace est évolutif : il a été prévu pour pouvoir y ajouter une chambre au rez-de-chaussée.
Programme : Transformation d’un ancien atelier en logement
Lieu : Montreuil
Maître d’ouvrage : Particuliers
Mission : Complète
Avancement : Livré en 2018
Surface : 70 m²
Thématique: Surélévation, Bois
Photographe: Pierre L’Excellent
Presse

































