
RENDEZ VOUS
SURELEVATION ET REHABILITATION D'UN IMMEUBLE


Le projet concerne la surélévation d’un petit immeuble en R+2 + combles, datant de 1980. S’insérant dans un tissu urbain avoisinant hétérogène avec des hauteurs variables, cet immeuble présente lui aussi une écriture hybride, ni haussmannienne, ni faubourienne, doté d’une façade sur rue aux rythmes d’ouvertures irrégulier.
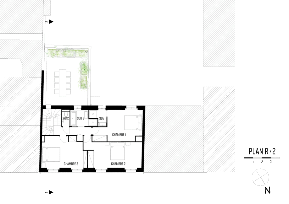
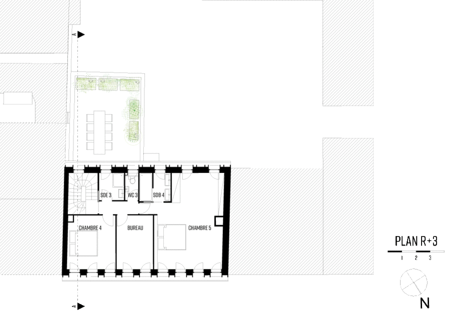
Agrémenté d’un commerce en Rez-de-chaussée cet immeuble est composé d’un niveau accueillant séjour et cuisine, et d’un second accueillant les chambres. Par le biais d’une surélévation, le projet redistribue les espaces sur 3 étages afin de donner une nouvelle respiration aux espaces de nuit, désormais répartis sur deux niveaux. La cuisine et le séjour sont quant à eux réuni en une entité spacieuse, ouvrant sur une terrasse réhabilitée sur cour, à l’abri des regards.
Côté rue, la surélévation s’affranchit ainsi d’une répartition « hybride » de la façade existante par l’affirmation d’un rythme clair, d’une trame régulière rendue lisible par des montants verticaux en bois saillants et élancés. Largement vitrée la façade alterne pleins traités dans la continuité de la pierre, et vidés, composés de fenêtres en aluminium brun.
Si le R+3 s’affirme, c’est avec discrétion que le deuxième étage de la surélévation se dresse. Revêtu d’un bardage bois aux tons naturels, il abrite jacuzzi et petite cuisine d’été. Véritable cocon au cœur de Paris, il s’ouvre sur une large terrasse de 40m²
Programme : surélévation
Lieu : Paris
Maître d’ouvrage : Particuliers
Mission : Complète
Surface : 250 m²
Avancement : En Chantier
Presse













