Saint Maur
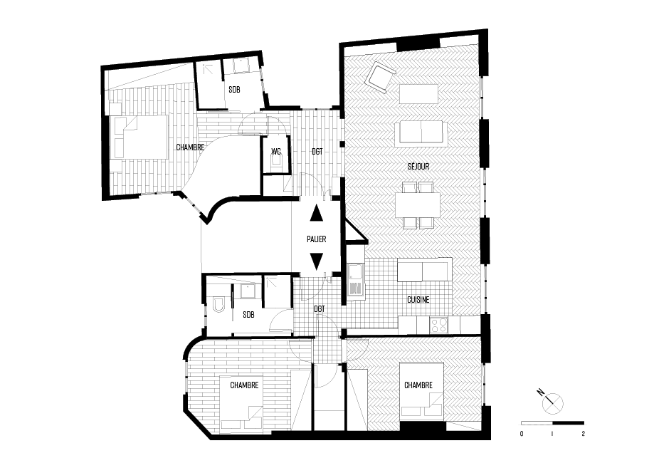
Réunion de 2 appartements en 1


Pour cette réunion de 2 appartements en 1 à Paris, l’enfilade des ouvertures a été privilégiée pour redonner sa noblesse au lieu.
Un travail de composition et de mise en valeur des matériaux existants a été accompli pour mêler ancien et contemporain.
Le parquet existant a été réemployé en remonté sur l’ilot de cuisine, dans un effet de pliage de l’élément.
La double entrée a été conservée, assurance la réversibilité de la réunion et créant deux espaces : parents et enfants, connectés par les pièces de vie familiales.
Une transformation émouvante pour cette famille qui a connu l’appartement avant la création des cabinets d’aisance.
Programme : Réunion de 2 appartements en 1
Lieu : Paris 11ème
Maître d’ouvrage : Particuliers
Mission : Complète
Avancement : Livré en 2017
Surface : 100m²
Thématique: Continuum, Enfilade















