UP
Surelevation d'un immeuble


Surélévation parisienne, au 6e étage d’un immeuble de 2001, conçu par le cabinet Derbesse.
Le projet nait d’une réflexion itérative basée sur des objectifs multiples :
Des objectifs formulés par la maitrise d’ouvrage : ajouter un étage pour augmenter la surface habitable (une chambre + 1salle d’eau + 1 pièce de vie), tout en conservant les qualités d’ouverture en plein ciel de la toiture terrasse existante.
Des objectifs intrinsèques à la nature du projet : l’insertion dans un contexte, la maîtrise technique du projet.
L’insertion dans le contexte, non pas comme outil de séduction, comme discrétion, mais comme un questionnement cher à l’atelier : faire avec ? Ni mimétisme ni rupture systématique mais Rencontre.
Rencontre entre entités bâties, entre matériaux, entre dispositifs constructifs (béton et ossature bois), également une belle rencontre avec un maitre d’ouvrage ouvert et attentif.
La volumétrie est constituée de plusieurs édicules emboîtés en zinc posé alternativement horizontalement et verticalement, affirmant une certaine autonomie de la surélévation par rapport à l’immeuble, un rythme différent. En revanche, le zinc rappelle la pierre bleue employée en pied d’immeuble.
Ces « boites » sont reliées par une grande verrière, espace de vie en plein ciel pensé comme une terrasse couverte, un dedans dehors, autre thème récurrent du travail de l’atelier.
Équipe de larges baies vitrées à galandage, aux rails encastrés au sol, continu entre l’intérieur et l’extérieur, cet espace bénéficie des qualités d’une grande terrasse traversante et du confort d’un espace habitable grâce aux performances thermiques des menuiseries employées.
L’espace chambre est accessible par deux portes symétriques, offrant de multiples parcours possibles, une liberté.
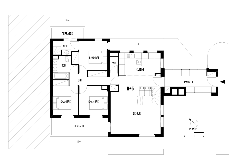
Le projet comporte aussi la transformation d’une passerelle extérieure en espace habitable à l’étage existant (R+5): large entrée équipée de nombreux rangements.
La construction a été réalisée en ossature bois, permettant un chantier sec.
Programme : Surélévation d’un appartement
Lieu : Paris XIIIe
Maître d’ouvrage : Particuliers
Mission : Complète
Avancement : Livré en 2018
Surface : 120 m²
Photographe: Pierre L’Excellent
Presse
- Article Houzz
- Reportage vidéo Le Mag Immo :


































