REMONTE-PENTE
Europan 10 - Lauréat - La Chaux-de-Fonds - Suisse


TELECHARGER LES PLANCHES
Lors du concours, la ville de La-Chaux-de-Fonds s’interrogeait sur la suture entre ville et forêt. Le projet Remonte-Pente propose une rencontre entre ville et nature, basé sur une relecture des spécificités et du non-bouleversement profond des équilibres.
Conçus de manière autonome, sans hiérarchie préétablie, rocher, plots et forêt, entités du projet, se superposent non pas de manière additionnelle ou causale, mais de manière complexe et imprévisible. Le projet a été pensé comme un dispositif et non un objet. Cet objectif a été éprouvé dans la suite du processus, au cours d’une phase correspondant à un APD chiffré, impliquant municipalité, bureaux d’études et architectes.
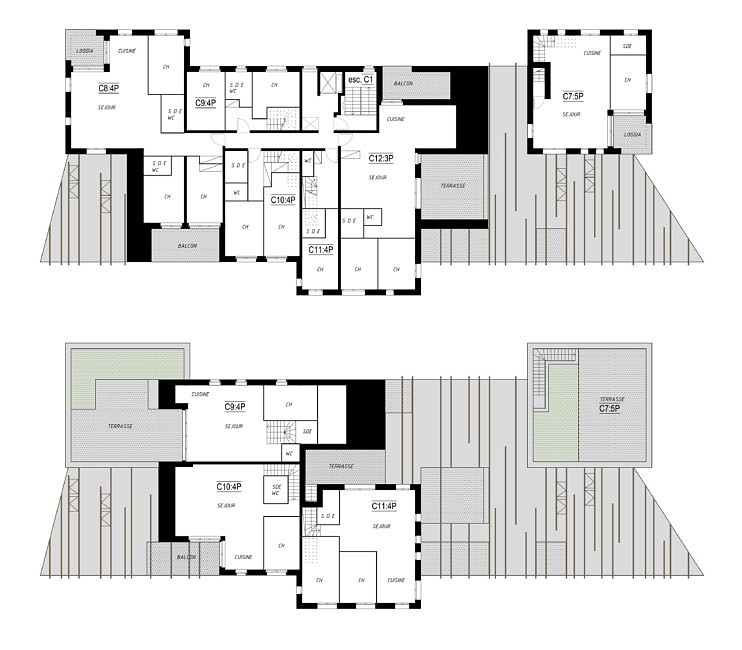
Ce travail de négociation avec le réel, a consisté à intégrer de nombreuses contingences réglementaires, budgétaires, typologiques et écologiques (Minergie) sans perdre les qualités originelles du concours : Diversité des parcours, mixité typologique, flexibilité du dispositif, sol naturel préservé (rue intérieure), projet au cœur de la forêt.
L’attitude de notre équipe est lisible à travers ce projet. Notre démarche s’appuie sur les forces en présence, jouant avec le contexte pour inventer de nouvelles situations. A l’opposé de la sur- détermination, nous nous efforçons de trouver des dispositifs dynamiques, plus que des objets figés. Nous cherchons à exploiter les tensions entre des éléments a priori contradictoires, sans se soucier de leur hiérarchie. L’équipe est enrichie par la diversité de parcours et de compétences de ses membres.
Programme : 73 logements, 1 Gare, Espaces publics
Lieu : La chaux de Fonds, Suisse
Maître d’ouvrage : Ville de La chaux de Fonds
Mission : Avant-projet
Surface : 6700 m²
Avec : Benoit Coulondres et Pierre Brochot
Presse


























